Home Private Residential Conservation Developments Various About Us Contact 

Elm Green

Elm Green Lane

Bradfield St Clare

Bury St Edmunds

Suffolk

IP30 0BH



T:       01284 828 145

info@scancon.co.uk


© Scancon Architects Ltd

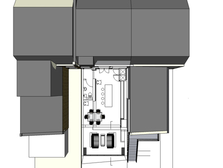
RAMSDEN ROAD, LONDON SW12

Full Planning Permission and Conservation Area Consent have been granted for a rear and side extension at ground floor level including some internal alterations.

Located within the Nightingale Lane Conservation Area, the proposed alterations facilitate a new open plan environment including a new kitchen / dining room, allowing for family activities to be shared. Additional light will be drawn into the building via roof lights located above the side extension. In addition, large glazed openings towards the rear and side of the new extension improve the relationship between the house and the garden.

The design of the new building adopts the slope of the site and serves to emphasise the changes in level between neighbouring properties.