Home Private Residential Conservation Developments Various About Us Contact 

Elm Green

Elm Green Lane

Bradfield St Clare

Bury St Edmunds

Suffolk

IP30 0BH



T:       01284 828 145

info@scancon.co.uk


© Scancon Architects Ltd


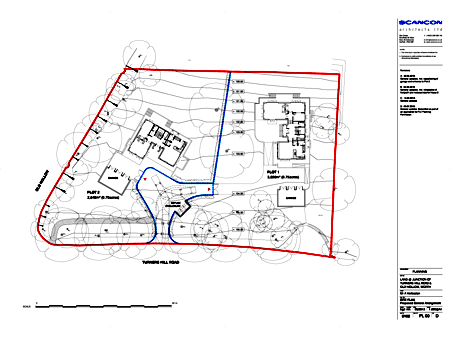
OLD HOLLOW, CRAWLEY, SUSSEX

The site is located at the North-East junction of Turners Hill Road and Old Hollow (Road) and comprises approximately 1.53 acres of predominantly wild shrub and woodland known as Land @ Old Hollow.

Under the current planning application, it is proposed to clear the wild shrubs and some younger trees to make way for two new detached family sized dwellings, each with an additional triple garage and individual landscaped plots of approximately 0.75 acres. These will be carefully located within existing clearings to make best use of natural light and the woodland setting. The remaining land will be retained as gardens and woodland.

Gated access and small gravelled drives lead from the shared driveway towards the east and west to separate courtyards around each dwelling.

Family activity space and terraces are primarily orientated towards the South-West featuring large glazed elements flooding the internal spaces with natural light while openings provide level access onto external terraces, serving as extensions of the living spaces within. The more formal accommodation benefits from views over the falling terrain and tree canopies to the north.

The proposed houses have been designed to reflect the local vernacular, while providing contemporary solutions for the thermal performance, materials and technologies used. The setting of the dwellings within the landscape provide good levels of privacy between plots and benefit from stunning views over the surroundings, resulting in residential accommodation of the highest quality.